Apartment Floorplans

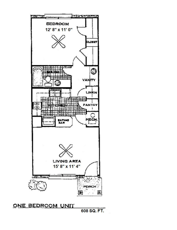
One-Bedroom Floorplan
Apartment floorplan with a single bedroom
There is one bedroom in this layout with a labeled window at the top. A bathroom and vanity are below the bedroom, and a kitchen is below each of those. The bottom of the image contains a larger living area and small porch.
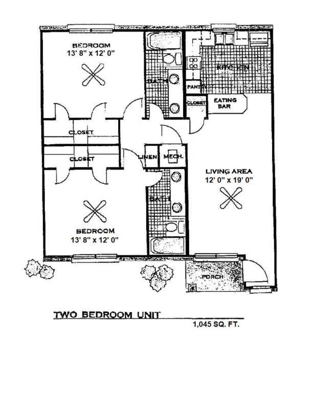
Two-Bedroom Floorplan
Two-bedroom apartment floorplan
There are two bedrooms in this layout with a labeled windows on the right side of the image. Two bathrooms, each containing a double-vanity, toilet, and shower, are to the right of the bedrooms. Finally, a kitchen and a larger living area make up the right side of the floorplan.
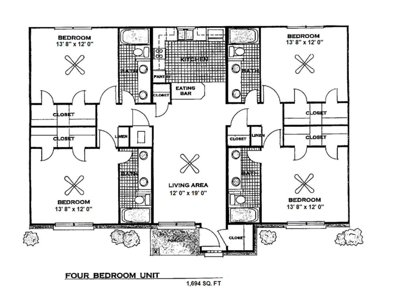
Four-Bedroom Floorplan
four-bedroom apartment layout
There are four bedrooms in this layout with a labeled windows, two on each side of the image. Bathrooms, each containing a double-vanity, toilet, and shower, are adjacent to each bedroom. Finally, a kitchen and a larger living area make up the center of the floorplan.